Tove Ditlevsens Gade 65, 1. 1

8240 Risskov

Tilgængelighed

Snart ledig

Månedlig leje kr. 14.900,-
Aconto kr. 400,-

Ledig fra

1. april 2026

Lejligheden

Lejligheden

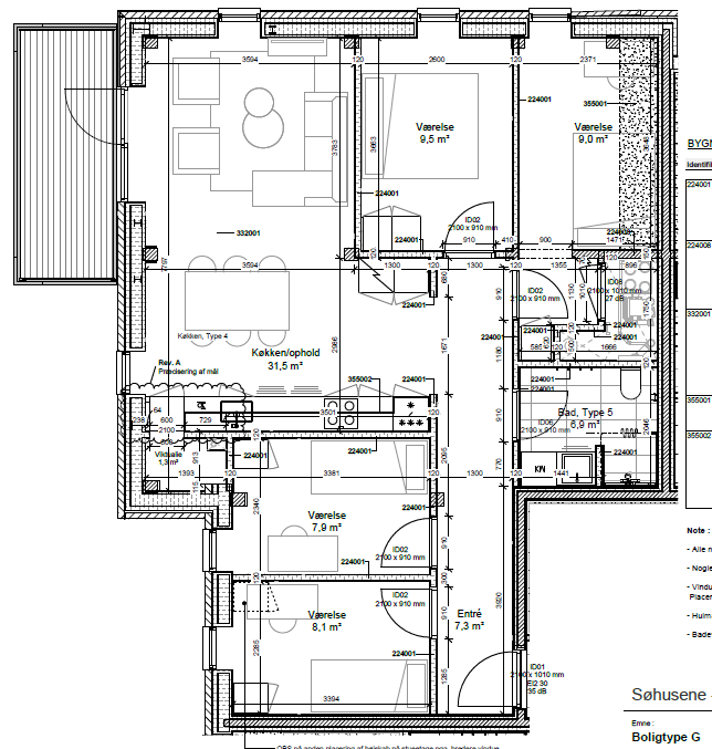
Rummelig 5-værelses lejlighed med åbent opholdsrum med god plads til at samles hele familien. Fra opholdsrummet er der udgang til en stor hjørnealtan. I opholdsrummet er der også fine træbjælker som giver et fint udtryk.

Køkkenet er et kvalitetskøkken fra Svane med opvaskemaskine og viktualierum , så der er god opbevaring.

Lejligheden har selvfølgelig også et skønt rummeligt badeværelse med vaskesøjle.

OBS: Boligerne er stadig under opførelse. De billeder, der kan ses her på siden er derfor ikke det færdige resultat.

Plantegning

Området

Tove Ditlevsens Gade er beliggende i et nyt og eksklusivt område, på en sidevej til Nordlandsvej i Risskov. Herfra er der kort afstand til naturen herunder Risskov Skov, Bellevue Strand og Egå Engsø.

Vores nye byggeri på Tove Ditlevsens Gade rummer 58 nye lejligheder, som står indflytningsklare til marts 2026. Byggeriet er opført med i en bærende konstruktion i rent træ – Danmarks første. Inde i lejlighederne bliver de smukke, synlige træbjælker et helt særligt kendetegn og giver hjemmene en varm og naturlig atmosfære.

Hver bolig har enten terrasse eller en altan. Til Penthouse lejlighederne hører der en privat tagterrasse med etableret udekøkken.

På få minutter er du ved Letbanen, som har stop kun 150 meter fra hoveddøren. Ruten til Aarhus C tager omkring 10 minutter og kører langs strandvejen i Risskov og smukke Aarhus Ø.

Fælles for hele området er der mulighed for leje af egen parkeringsplads, så der altid er sikret plads til din bil. Parkeringskælderen ligger i stueplan, den er aflåst og åbner kun ved scanning af indregistrerede nummerplader.

Skal denne lejlighed være din?

Book din fremvisning online, allerede nu.