Tove Ditlevsens Gade 47, 1. 2

8240 Risskov

Tilgængelighed

Snart ledig

Månedlig leje kr. 7.000,-
Aconto kr. 500,-

Ledig fra

1. juni 2026

Lejligheden

Lejligheden

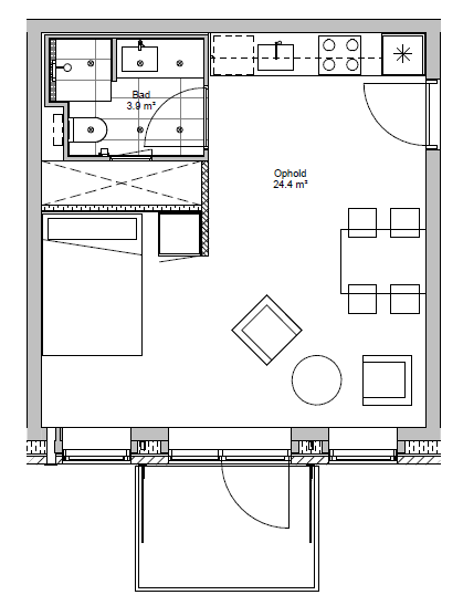
En af vores mest populære 1-værelses, da den har et “hak”, hvor sengen passer perfekt ind. Flere af vores nuværende lejer, har fundet på kreative løsninger, for at få mest muligt ud af lejligheden. Udover et lyst opholdsrum har lejligheden et rummeligt badeværelse med en kombi vaskemaskine og et moderne køkken.

Der er flot egetræsgulv og gulvvarme i hele lejligheden.

Plantegning

Området

Tove Ditlevsens Gade er beliggende i et nyt og eksklusivt område, på en sidevej til Nordlandsvej i Risskov. Herfra er der kort afstand til naturen herunder Risskov Skov, Bellevue Strand og Egå Engsø. Området rummer i alt 93 lejeboliger, varierende i størrelser fra 35m2 – 145m2

Boligerne er fordelt på 1, 2, 3 og 4 værelsers lejligheder, penthouse lejligheder med egne tagterrasser og 3 etagers rækkehuse med tilhørende parkering.

Hver bolig har enten terrasse eller en altan. Til Penthouse lejlighederne hører der en privat tagterrasse med etableret udekøkken.

På få minutter er du ved Letbanen, som har stop kun 150 meter fra hoveddøren. Ruten til Aarhus C tager omkring 10 minutter og kører langs strandvejen i Risskov og smukke Aarhus Ø.

Fælles for hele området er der mulighed for leje af egen parkeringsplads, så der altid er sikret plads til din bil. Parkeringskælderen ligger i stueplan, den er aflåst og åbner kun ved scanning af indregistrerede nummerplader.

Skal denne lejlighed være din?

Book din fremvisning online, allerede nu.