Tove Ditlevsens Gade 11

Tove Ditlevsens Gade 11,
8240 Risskov

Tilgængelighed

Snart ledig

Månedlig leje kr. 14.700,-
Aconto kr. 200,-

Ledig fra

1. april 2026

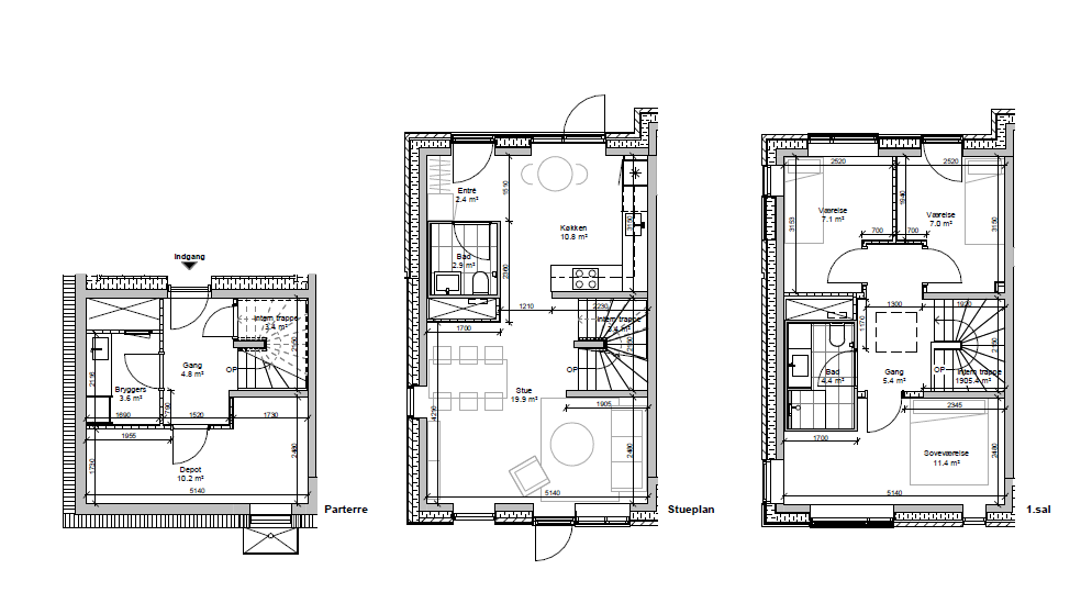
Lejligheden

Lejligheden

Rækkehus i tre etager med to skønne terrasser ,oplagt til børnefamilien.
Boligen har et lyst og moderne køkken, og i stueetagen findes desuden et praktisk gæstetoilet.

På øverste etage er der tre gode soveværelser samt et ovenlysvindue ved trappen, som giver et dejligt naturligt lys. Her er også boligens badeværelse.

I kælderen findes et funktionelt bryggers med vaskesøjle samt direkte udgang til p-kælderen, hvor der medfølger en gratis parkeringsplads.

Rækkehuset ligger i et familievenligt område, hvor der allerede bor flere børnefamilier, som er meget glade for både boligen og omgivelserne.

Plantegning

Området

Tove Ditlevsens Gade er beliggende i et nyt og eksklusivt område, på en sidevej til Nordlandsvej i Risskov. Herfra er der kort afstand til naturen herunder Risskov Skov, Bellevue Strand og Egå Engsø. Området rummer i alt 93 lejeboliger, varierende i størrelser fra 35m2 – 145m2

Boligerne er fordelt på 1, 2, 3 og 4 værelsers lejligheder, penthouse lejligheder med egne tagterrasser og 3 etagers rækkehuse med tilhørende parkering.

Hver bolig har enten terrasse eller en altan. Til Penthouse lejlighederne hører der en privat tagterrasse med etableret udekøkken.

På få minutter er du ved Letbanen, som har stop kun 150 meter fra hoveddøren. Ruten til Aarhus C tager omkring 10 minutter og kører langs strandvejen i Risskov og smukke Aarhus Ø.

Fælles for hele området er der mulighed for leje af egen parkeringsplads, så der altid er sikret plads til din bil. Parkeringskælderen ligger i stueplan, den er aflåst og åbner kun ved scanning af indregistrerede nummerplader.

Skal denne lejlighed være din?

Book din fremvisning online, allerede nu.