Torsøvej 4B, 2. 5

Torsøvej 4B,
2.
5.
8240 Risskov

Tilgængelighed

Snart ledig

Månedlig leje kr. 6.200,-
Aconto kr. 500,-

Ledig fra

1. februar 2026

Lejligheden

Lejligheden

Skøn 1 værelses lejlighed med altan.

Der er flotte egetræsgulve og gulvarme i hele lejligheden.

Moderne lyst køkken med stort køleskab og opvaskemaskine.

Badeværelset har god plads og opbevaringsskuffer under vasken, et stort spejl og vaskemaskine og tørretumbler.

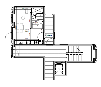
Plantegning

Området

Torsøvej er beliggende i et nyt og eksklusivt område, på en sidevej til Nordlandsvej i Risskov. Herfra er der kort afstand til naturen herunder Risskov Skov, Bellevue Strand og Egå Engsø. Området rummer i alt 92 lejeboliger, varierende i størrelser fra 35m2 – 145m2

Boligerne er fordelt på 1, 2, 3 og 4 værelsers lejligheder, penthouse lejligheder med egne tagterrasser og 3 etagers rækkehuse med tilhørende parkering.

Hver bolig har enten terrasse eller en altan. Til Penthouse lejlighederne hører der en privat tagterrasse med etableret udekøkken.

På få minutter er du ved Letbanen, som har stop kun 150 meter fra hoveddøren. Ruten til Aarhus C tager omkring 10 minutter og kører langs strandvejen i Risskov og smukke Aarhus Ø.

Fælles for hele området er der mulighed for leje af egen parkeringsplads, så der altid er sikret plads til din bil. Parkeringskælderen ligger i stueplan, den er aflåst og åbner kun ved scanning af indregistrerede nummerplader.

Skal denne lejlighed være din?

Book din fremvisning online, allerede nu.